LORETO











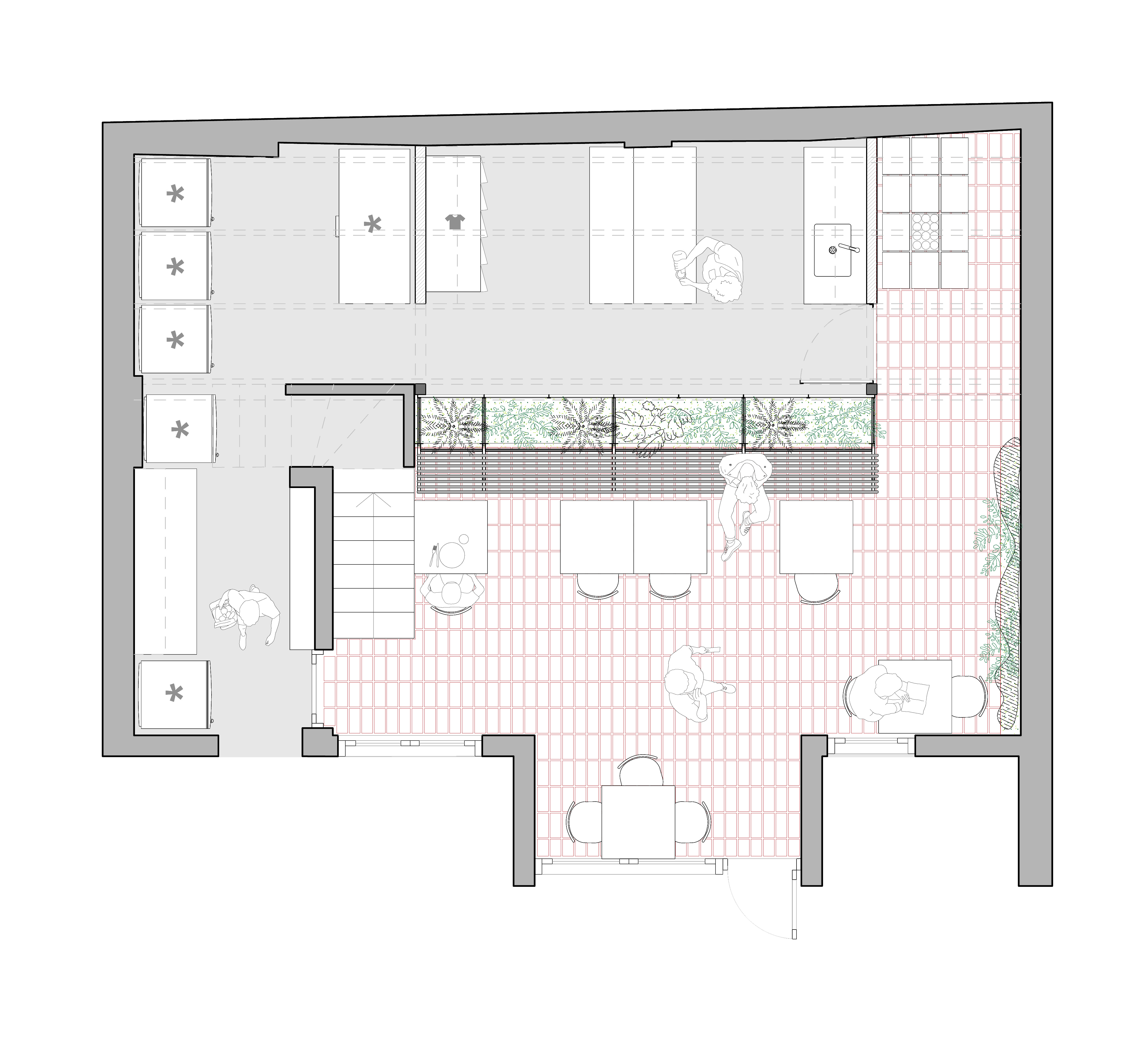
Loreto es una casa heredada devenida en refugio gastronómico. Una apropiación que hace uso del espacio hasta el último rincón. Atiborrado, bellamente caótico y con carácter barrial. Siempre en movimiento y en constate crecimiento, es menester extender la cocina para ganar espacio adicional de guardado y preparación. Colonizar el último espacio vacante. Incorporar parte del patio, redefinirlo y conservar su función. La premisa es consolidar una nueva fachada para el mismo. Hacer de cuenta que el volumen construido pasa a un segundo plano, se mimetiza y desaparece.
Pensamos en una fachada no como un mero cerramiento, sino como una pieza que toma espesor, donde el límite se ensancha y se carga de uso. Una sucesión de capas: vidrio, cantero, malla, banco; permite interactuar, da lugar a que crezcan las plantas, a sentarse y espiar lo que sucede en el interior. La fachada supone un tamiz permeable que admite reciprocidad. Un linde entre el uso público y el privado, como una membrana, que es a la vez resistente y porosa, permite el intercambio de aromas y sonidos entre el adentro y el afuera. Se vislumbran siluetas, movimientos, ritmos. Permite entrever e insinúa sin develar la totalidad.
El proyecto optimiza al máximo el espacio y trabaja con recursos materiales disponibles, para minimizar costos y lenguajes. La estructura metálica queda a la vista: galvanizados, aceros, acabados metalizados que no pretenden ser más. Un solado de ladrillo, crudo, resistente y regular unifica todo el conjunto. Da cuenta de la escala, las proporciones, la factura y la técnica. Con é intencionamos la monocromía existente, y la suma del inconfundible rojo teja amalgama hasta casi empalagar.
Ficha Técnica:
M++C Arquitectos
Construcción: RBA Construcciones
Fotografías: Fernando Schapochnik
Reforma y ampliación gastronómica
Superficie: 50 m²
Ubicación: Ciudad de Buenos Aires, ARG
Año: 2023